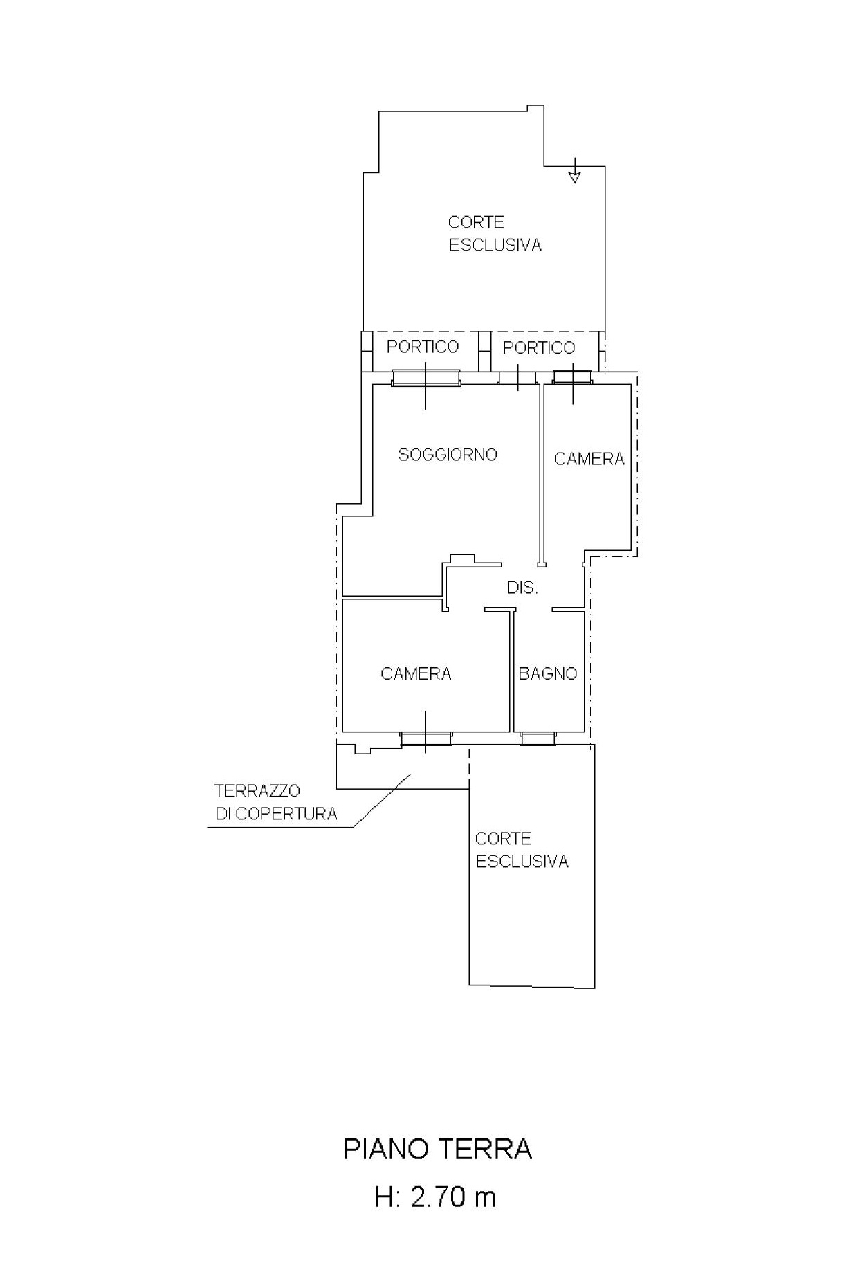
S. Andrea in Casale – Appartamento con ingresso indipendente, corte privata e garage Nel cuore di S. Andrea in Casale, frazione del comune di San Clemente, a pochi minuti da Riccione, Eco Immobiliare propone in esclusiva un grazioso appartamento con ingresso indipendente, situato in posizione strategica e comoda ai principali servizi. L’immobile si distingue per la razionale distribuzione degli spazi e per la presenza di piacevoli spazi esterni, ideali per vivere la casa in ogni stagione. Composizione dell’immobile • Ingresso indipendente su soggiorno con angolo cottura, con accesso diretto a una spaziosa corte esterna esclusiva, perfetta per pranzi all’aperto e momenti di relax • Disimpegno • Camera matrimoniale con affaccio su una bellissima terrazza • Cameretta • Bagno finestrato con box doccia L’appartamento si trova in un piacevole complesso residenziale costruito nel 2010, composto da unità abitative tutte con ingresso indipendente. Caratteristiche • Ottimo stato di manutenzione • Aria condizionata • Tapparelle elettriche Completano la proprietà • Garage al piano interrato • Posto auto coperto • Arredamento incluso nella vendita Una soluzione ideale come prima casa, ma anche perfetta come investimento da mettere a reddito. Rif. 3457 Eco Immobiliare – Riccione Viale Lazio 25/A �ž Tel/Fax 0541 606607 �§ info@ecoimmobiliare.com � www.ecoimmobiliare.com
| Scheda Tecnica | |
|---|---|
| Metratura | 62 mq |
| Anno costruzione | 2010 |
| Classe energetica | C EPTOT 163,88 kWh/m2/Anno |
| Tipo Immobile | Appartamento |
| Piano | terra |
| Piani edificio | 1 |
| Ascensore | NO |
| Stato | buono/abitabile |
| Cantina | NO |
| Sogg. Salotto | 1 |
| Tipo cucina | angolo cottura |
| Camere da letto | 2 |
| Bagni | 1 |
| Mansarda | NO |
| Tavernetta | NO |
| Balconi | 0 |
| Terrazzi | 1 |
| Giardino | SI |
| Garage | SI |
| Posto auto | NO |