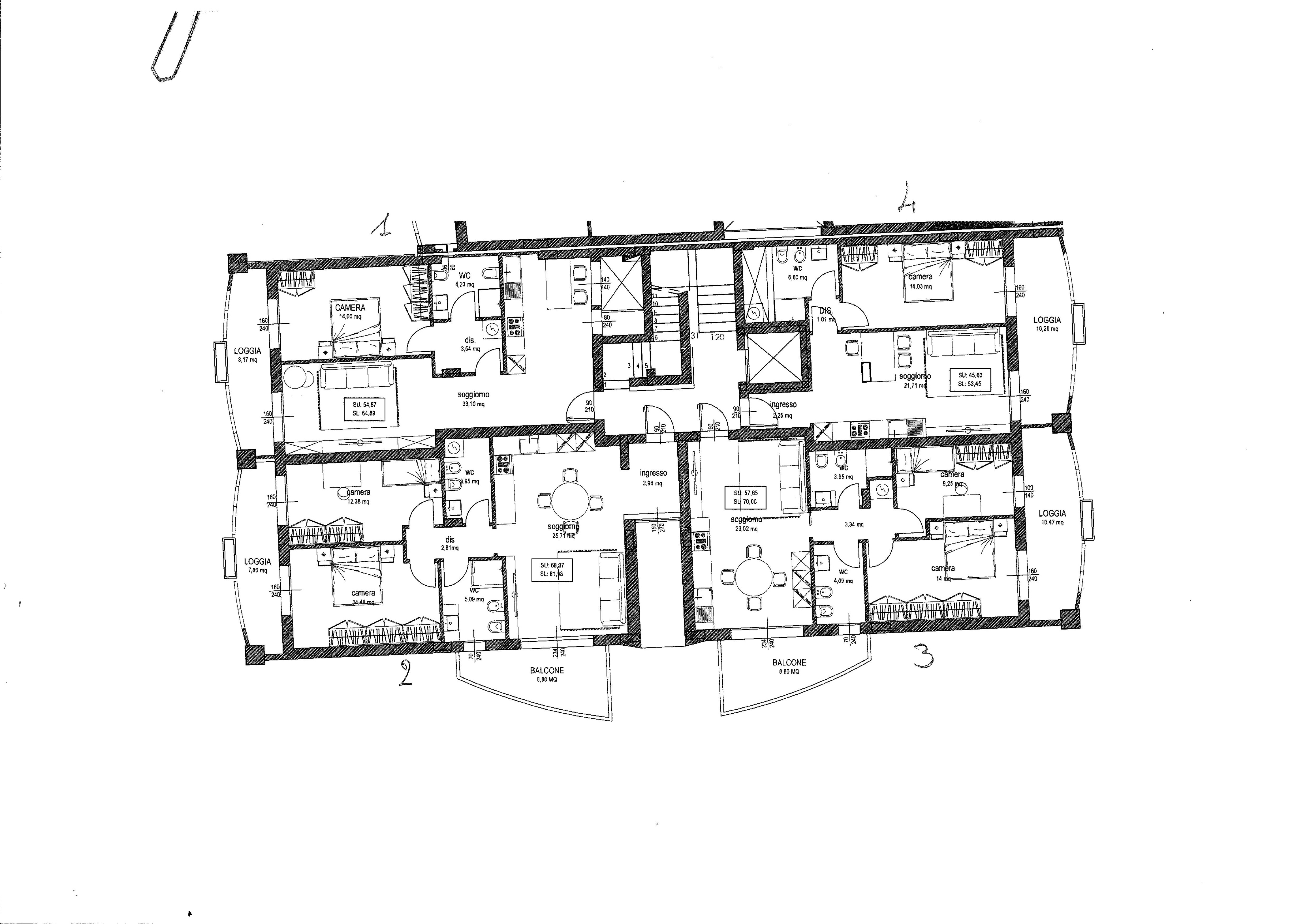
Appartamento di nuova costruzione a Sant'Andrea in Casale – Secondo piano, 70 mq con doppi servizi In palazzina di nuova realizzazione, con consegna prevista entro la fine del 2025, proponiamo in vendita un appartamento moderno e ben distribuito, situato al secondo piano in zona residenziale tranquilla e servita. L’immobile, di circa 70 mq, è ideale per giovani coppie, piccoli nuclei familiari o come investimento, grazie alla razionale suddivisione degli spazi e alle ottime finiture previste. L’appartamento è composto da: Ingresso su soggiorno con angolo cottura, ambiente conviviale e luminoso; Una camera matrimoniale accogliente; Una seconda camera (cameretta), ideale come stanza per bambini, studio o ospiti; Un bagno principale completo, con sanitari di qualità e doccia; Un secondo bagno di servizio, pratico e funzionale; Due balconi, tra cui uno loggiato, perfetto per momenti di relax o per pranzi all’aperto. Possibilità di acquistare separatamente un garage privato al piano terra. L’edificio è costruito nel rispetto delle normative più recenti in tema di efficienza energetica, isolamento acustico e comfort abitativo, con finiture moderne e materiali di pregio. Un’ottima soluzione per chi cerca un’abitazione nuova, funzionale e in posizione strategica. Nostro riferimento numero 3403. Per ulteriori informazioni o chiarimenti potete contattare l'Agenzia Eco Immobiliare con sede a Riccione Viale Lazio 25/a telefono e fax 0541606607 sito internet www.ecoimmobiliare.com email info@ecoimmobiliare.com
| Scheda Tecnica | |
|---|---|
| Metratura | 70 mq |
| Anno costruzione | 2025 |
| Classe energetica | B |
| Tipo Immobile | Appartamento |
| Piano | 2 |
| Piani edificio | 0 |
| Ascensore | NO |
| Stato | nuovo/in costruzione |
| Cantina | NO |
| Sogg. Salotto | 1 |
| Tipo cucina | angolo cottura |
| Camere da letto | 2 |
| Bagni | 2 |
| Mansarda | NO |
| Tavernetta | NO |
| Balconi | 2 |
| Terrazzi | 0 |
| Giardino | NO |
| Garage | NO |
| Posto auto | NO |