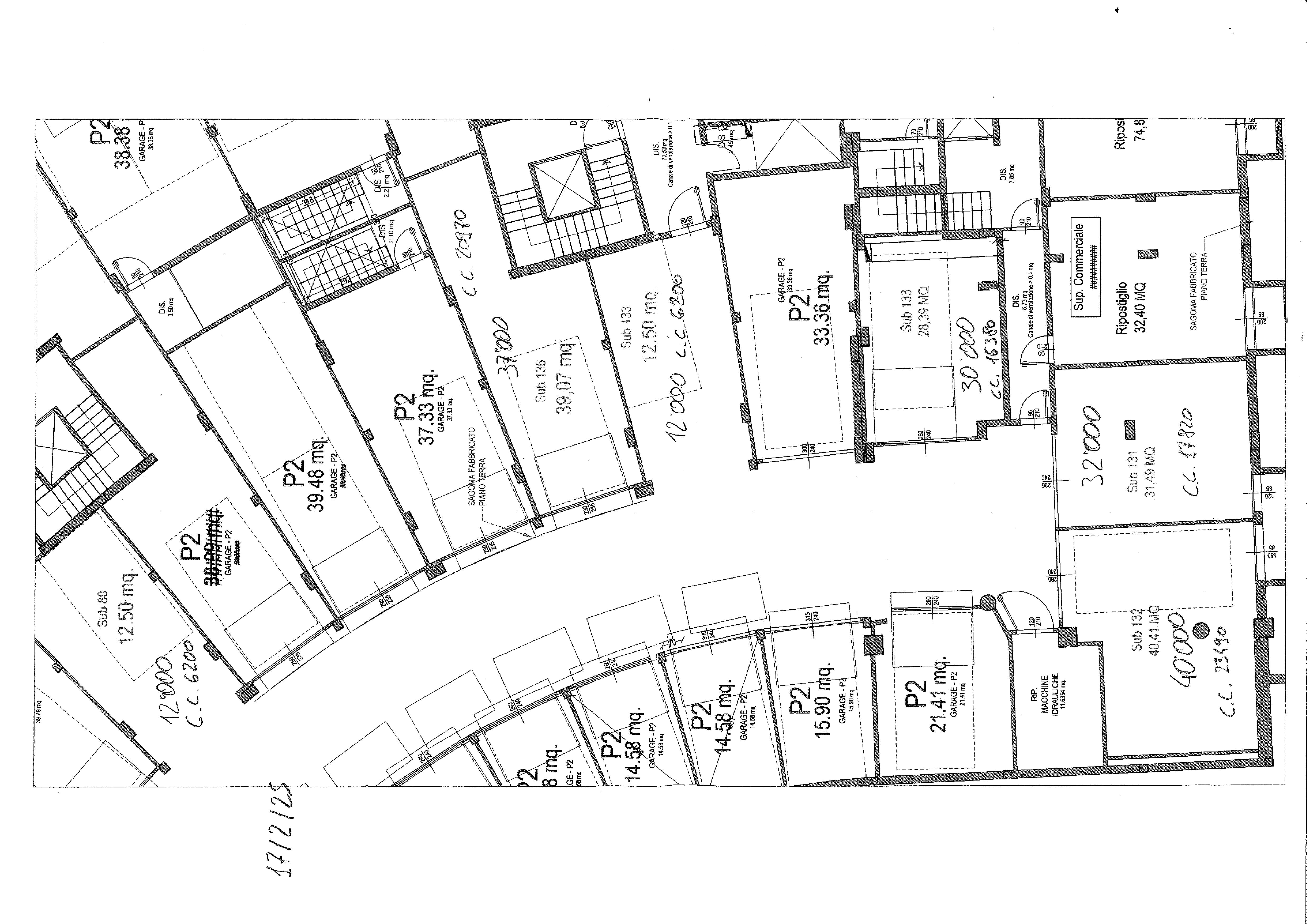
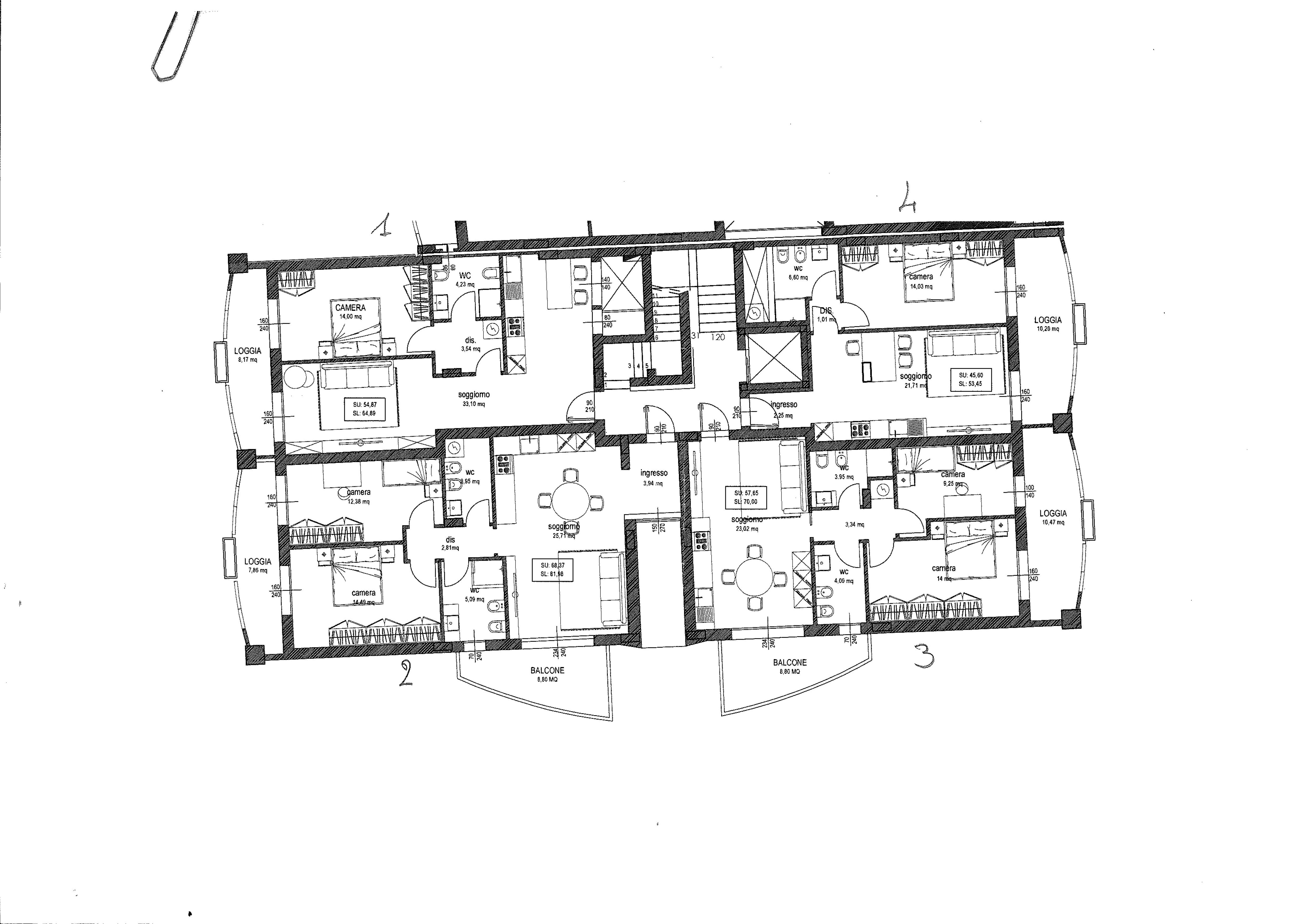
Appartamento di nuova costruzione a Sant'Andrea in Casale – Secondo piano, 85 mq con doppi servizi In contesto residenziale tranquillo e ben collegato, proponiamo in vendita un appartamento di nuova costruzione al secondo piano, con consegna prevista entro la fine del 2025. L’immobile, di circa 85 mq, è pensato per offrire spazi funzionali, moderni e luminosi, ideali per famiglie o per chi cerca una soluzione comoda e ben distribuita. L'appartamento è composto da: Ingresso su ampio soggiorno con angolo cottura, ambiente accogliente e ben illuminato, perfetto per la vita quotidiana; Disimpegno che separa la zona giorno dalla zona notte; Una camera matrimoniale spaziosa; Una seconda camera (cameretta), adatta per figli, ospiti o come studio; Un bagno principale di generose dimensioni, completo di box doccia; Un secondo bagno di servizio, pratico e funzionale; Due balconi, tra cui uno loggiato, ideale per pranzi all'aperto o momenti di relax. Possibilità di acquistare separatamente un garage privato al piano terra. L’edificio è costruito secondo le più recenti normative in materia di efficienza energetica, isolamento termico e acustico, con finiture moderne e materiali di alta qualità. Soluzione perfetta per chi desidera un’abitazione nuova, spaziosa e pronta da personalizzare. Nostro riferimento numero 3402. Per ulteriori informazioni o chiarimenti potete contattare l'Agenzia Eco Immobiliare con sede a Riccione Viale Lazio 25/a telefono e fax 0541606607 sito internet www.ecoimmobiliare.com email info@ecoimmobiliare.com
| Scheda Tecnica | |
|---|---|
| Metratura | 85 mq |
| Anno costruzione | 2025 |
| Classe energetica | B |
| Tipo Immobile | Appartamento |
| Piano | 2 |
| Piani edificio | 0 |
| Ascensore | NO |
| Stato | nuovo/in costruzione |
| Cantina | NO |
| Sogg. Salotto | 1 |
| Tipo cucina | angolo cottura |
| Camere da letto | 2 |
| Bagni | 2 |
| Mansarda | NO |
| Tavernetta | NO |
| Balconi | 2 |
| Terrazzi | 0 |
| Giardino | NO |
| Garage | NO |
| Posto auto | NO |