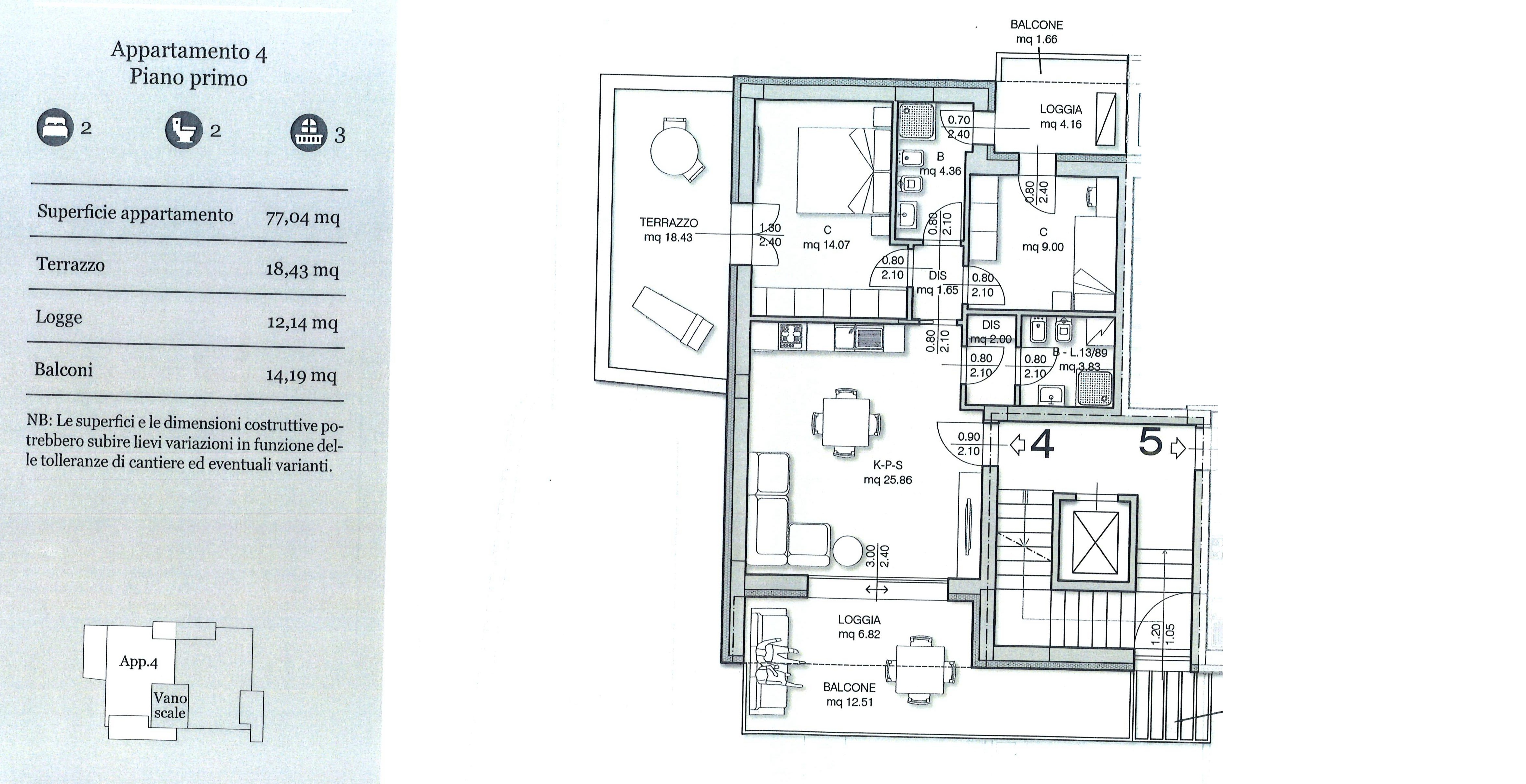
NUOVA COSTRUZIONE – RICCIONE, ZONA FONTANELLE APPARTAMENTO CON TRE CAMERE E AMPI TERRAZZI LOGGIATI – APP.TO N° 4 In elegante palazzina di prossima realizzazione, composta da sole 8 unità e servita da ascensore, proponiamo luminoso appartamento quadrilocale posto al primo piano, caratterizzato da ampi terrazzi loggiati e spazi interni funzionali. Composizione: • Soggiorno con cucina a vista, molto luminoso, con accesso diretto a un terrazzo loggiato ideale per pranzi e cene all’aperto; • Reparto notte con camera matrimoniale ampia e luminosa con terrazzo, cameretta con balcone loggiato; • Due bagni completi di box doccia, di cui uno finestrato. Al piano interrato sono disponibili garage o posti auto coperti (a scelta, non incluso nel prezzo). Caratteristiche della nuova costruzione: • Personalizzazione degli interni grazie al supporto dello studio tecnico di progettazione; • Pagamenti personalizzati; • Consegna prevista: dicembre 2027; • A soli 800 metri dal mare; • Classe energetica A4, la più alta in termini di efficienza; • Dotazioni tecnologiche di ultima generazione: o Impianto fotovoltaico da 1 kW; o Riscaldamento a pavimento; o Predisposizione per raffrescamento multisplit in ogni ambiente; o Impianto puntiforme a parete negli ambienti principali; o Pompa di calore ad alta prestazione; • Contesto residenziale tranquillo e circondato dal verde, ideale sia come abitazione principale che come casa vacanza. Sono disponibili ulteriori bilocali, trilocali e quadrilocali, tutti dotati di confortevoli spazi esterni. Immobile soggetto ad IVA. ________________________________________ SISMABONUS ACQUISTO – DETRAZIONE 2027 Nel 2027 il Sismabonus prevede una detrazione fiscale del 36% per l’acquisto dell’abitazione principale e del 30% per altri immobili, con un tetto massimo di spesa pari a 96.000 €. L’agevolazione è applicabile anche all’acquisto di unità immobiliari antisismiche, come previsto dalla normativa prorogata per il triennio 2025–2027. ________________________________________ RIF. 3411-4 Per ulteriori informazioni: Agenzia Eco Immobiliare Riccione – Viale Lazio 25/A Tel. e Fax: 0541 606607 Sito: www.ecoimmobiliare.com Email: info@ecoimmobiliare.com
| Scheda Tecnica | |
|---|---|
| Metratura | 77 mq |
| Anno costruzione | 2027 |
| Classe energetica | A4 |
| Tipo Immobile | Appartamento |
| Piano | 1 |
| Piani edificio | 3 |
| Ascensore | SI |
| Stato | nuovo/in costruzione |
| Cantina | NO |
| Sogg. Salotto | 1 |
| Tipo cucina | angolo cottura |
| Camere da letto | 2 |
| Bagni | 2 |
| Mansarda | NO |
| Tavernetta | NO |
| Balconi | 2 |
| Terrazzi | 1 |
| Giardino | NO |
| Garage | NO |
| Posto auto | NO |